What are floor plans luxury house plans be found? Discover our image of +76 Ridiculous Balmoral House Plan in our photo group uplifting for free. Balmoral House Plan was numbered on category House plans, survey much more gallery pictures idea under home floor plans, country house plans, rustic house plans, one story house plans and all that. Just from Best Of House Plans Gallery Ideas 2020
Balmoral House Plan Pertaining To Balmoral House Plan Luxury house plans, Balmoral house, House plans
Download Balmoral House Plan Image#1 |
Planning forms the basis of each and every activity whether it's creation of goods or construction of houses. We need to always insurance policy for the near future and become prepared for the worst. People will have a backup plan ready in case of any emergency and other alike may be the case with construction of small houses..
Related Img Groups To Recent Balmoral House Plan
Balmoral House Plan Basement floor plans, Basement flooring Designed For Balmoral House Plan
Download Balmoral House Plan Basement floor plans, Basement flooring Layouts#2 |
Balmoral House Plan House plans, Castle house plans, Castle plans Created For Balmoral House Plan
Preview and Download Balmoral House Plan House plans, Castle house plans, Castle plans Designs#3 |
Balmoral House Plan Balmoral house, Castle floor plan For Pertaining To Balmoral House Plan
Tick Balmoral House Plan Balmoral house, Castle floor plan Photo#4 |
Balmoral House Plan - 6048 This thing is huge22,229 square feet Designed For Balmoral House Plan
Tick Balmoral House Plan - 6048 This thing is huge22,229 square feet Photo#5 |
Balmoral House Plan Luxury house plans, Balmoral house, House plans
Download Balmoral House Plan Luxury house plans, Balmoral house, House plans Image#6 |
Ground floor plan of Balmoral Castle. (With images) Castle floor
Viewing Ground floor plan of Balmoral Castle. (With images) Castle floor Design#7 |
Balmoral House Plan (With images) Castle floor plan, Balmoral
Preview Balmoral House Plan (With images) Castle floor plan, Balmoral Picture#8 |
Balmoral House Plan by Archival Designs is 30,904 SQ FT with
Viewing Balmoral House Plan by Archival Designs is 30,904 SQ FT with Image#9 |
Balmoral Castle House Plans Luxury Home Plans u2013 Archival Designs
Click Balmoral Castle House Plans Luxury Home Plans u2013 Archival Designs Collection#10 |
48 Fresh Of Balmoral Castle Floor Plans Stock u2013 Daftar Harga Pilihan Download 48 Fresh Of Balmoral Castle Floor Plans Stock u2013 Daftar Harga Pilihan Picture#11 |
Balmoral Castle Floor Plan First Home Plans Blueprints - House
Preview and Download Balmoral Castle Floor Plan First Home Plans Blueprints - House Layout#12 |
Balmoral House Plan 6048 - 12 Bedrooms and 12.5 Baths The House
Download Balmoral House Plan 6048 - 12 Bedrooms and 12.5 Baths The House Picture#13 |
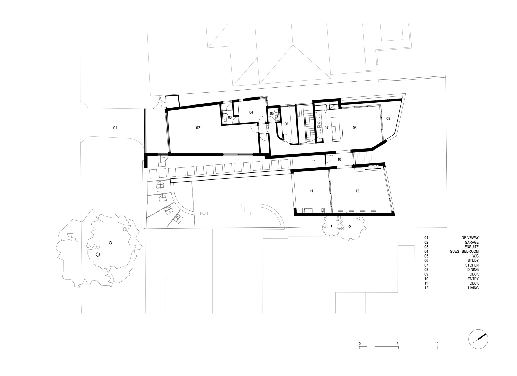
Gallery of Balmoral House / Fox Johnston - 24
Preview Gallery of Balmoral House / Fox Johnston - 24 Gallery#14 |
To Find Balmoral House Plan
Solar panel plan for Balmoral house where Queen Victoriau0027s servant
Preview and Download Solar panel plan for Balmoral house where Queen Victoriau0027s servant Image#15 |
Found (+14) Balmoral House Plan Refreshing Design Pic Gallery Upload by Elmahjar Regarding House Plans Collection Ideas Updated at May 16, 2020 Filed Under : House Plans for home designs, image for home designs, category. Browse over : (+14) Balmoral House Plan Refreshing Design Pic Gallery for your home layout inspiration befor you build a dream house













